Продукция и услуги компании

В данном блоке Вы можете детально ознакомиться с предоставляемыми нами услугами, а также с перечнем изготавливаемой продукции.
Сооружения комплексной очистки поверхностного стока

Одним из значительных источников загрязнения водных объектов является поверхностный сток (ливневой сток или «ливневка»). Проблема загрязнения водных объектов поверхностным стоком, зачастую остается без внимания и поэтому промышленно-ливневые сточные воды в большинстве случаев попадают в водные объекты без очистки, неся с собой большое количество органических загрязнений, взвешенных веществ, нефтепродуктов, фенолов, соединений тяжелых металлов, биогенных элементов. Фирмой «СГС» были разработаны комплексы очистки ливневых сточных вод, которые сочетают в себе применение новейших технологий, высокую степень очистки, простоту и надежность в эксплуатации.
Отличительной особенностью предлагаемых очистных сооружений является оригинальность примененных конструктивно-технологических решений, позволяющих комплектовать очистные сооружения различными видами технологического оборудования и загрузкой сорбционного фильтра в зависимости от требуемых показателей очистки и условий эксплуатации.
Очистные сооружения изготавливаются в соответствии с ТУ 28.29.12-001-90849087-2019. Очистные сооружения энергонезависимы, имеют высокое качество очистки, не требуют постоянного присутствия обслуживающего персонала.
Производительность, состав и габаритные размеры очистных сооружений разрабатываются для конкретного объекта в соответствие с нормативными документами.
Очистные сооружения имеют все необходимые сертификаты качества.
Типовое оборудование предназначено для очистки поверхностных стоков от взвешенных веществ, нефтепродуктов и тяжелых металлов с территории промышленных предприятий, городских территорий, АЗС, автомобильных стоянок, автодорог, мостовых развязок и т. п. Оборудование предназначено для очистки сточных вод до норм сброса в системы коммунальной канализации или водоемы рыбохозяйственного назначения.
Типовые очистные сооружения состоят из следующих основных технологических узлов: первичный отстойник, блок тонкослойных модулей, блок коалесцентных модулей, сорбционный фильтр.
Предварительная грубая очистка загрязненной части поверхностного стока от взвешенных частиц крупностью более 0.15 мм и нефтепродуктов с крупностью частиц более 80 мкм осуществляется с помощью первичного отстойника и блока тонкослойных модулей. Конфигурация тонкослойных модулей и особенность крепления в пакеты обеспечивают их самоочищение в процессе эксплуатации.
Вторая ступень очистки поверхностного стока от нефтепродуктов с крупностью частиц от 30 до 80 мкм и взвешенных частиц с крупностью от 0.08 до 0.15 мм предусматривается в блоке коалесцентных модулей. Конфигурация коалесцентных модулей и особенность крепления в пакеты, также обеспечивают их самоочищение в процессе эксплуатации.
Третью, заключительную, ступень очистки обеспечивает сорбционный фильтр.
ООО «СГС» выпускает различные типы очистных сооружений поверхностного стока в соответствие с предъявленными требованиями, составом исходной воды, необходимой степенью очистки. Наша компания может изготовить очистные сооружения из различных материалов.
Мы предлагаем своим клиентам проверенные временем и надежные очистные сооружения.
Размещение технологического оборудования в типовых очистных сооружениях предлагаем в различных корпусах:
— стеклопластиковый;
— пластиковый;
— железобетонный колодец;
— металлический;
— блок-контейнер;
— железобетонный

Очистные сооружения из композитных материалов

Сооружение комплексной очистки поверхностного стока ОС (3-6 л/сек)

1. Корпус;
2. Отстойник;
3. Тонкослойный модуль;
4. Коалесцентный модуль;
5. Патрубок переливной;
6. Фильтр сорбционный;
7. Лестница;
8. Технологический лаз;
9. Крышка с воздухоотводом.
Сооружение комплексной очистки поверхностного стока ОС (3-6 л/сек)

1. Корпус;
2. Отстойник;
3. Патрубок переливной;
4. Тонкослойный модуль;
5. Коалесцентный модуль;
6. Патрубок переливной;
7. Фильтр сорбционный;
8. Лестница;
9. Технологический лаз;
10. Крышка с воздухоотводом.
Сооружение комплексной очистки поверхностного стока ОС (3-6 л/сек)

1. Корпус;
2. Отстойник;
3. Патрубок переливной;
4. Тонкослойный модуль;
5. Коалесцентный модуль;
6. Патрубок переливной;
7. Фильтр сорбционный;
8. Лестница;
9. Технологический лаз;
10. Крышка с воздухоотводом.
Сооружение комплексной очистки поверхностного стока
со скиммером и нефтесборной емкостью ОС-Н

Сооружение предназначено для очистки производственно-поверхностного стока с высоким содержанием нефтепродуктов в исходном стоке. Данный сток характерен для территорий нефтебаз, эстакад слива-налива нефтепродуктов и других предприятий нефтегазовой промышленности.
1. Корпус;
2. Отстойник;
3. Патрубок переливной;
4. Нефтесборник;
5. Тонкослойный модуль;
6. Коалесцентный модуль;
7. Патрубок переливной;
8. Фильтр сорбционный;
9. Лестница;
10. Технологический лаз;
11. Крышка с воздухоотводом;
12. Скиммер
Сооружение комплексной очистки поверхностного стока с мембранной аэрационной системой ОС-А

Сооружение комплексной очистки поверхностного стока с мембранной аэрационной системой ОС предназначено для очистки поверхностного стока, имеющего в своем составе загрязнения характерные для хоз. бытового стока, а также для систем общесплавной канализации.
1. Корпус;
2. Отстойник;
3. Аэратор;
4. Патрубок переливной;
5. Тонкослойный модуль;
6. Коалесцентный модуль;
7. Патрубок переливной;
8. Фильтр сорбционный;
9. Корзина для мусора;
10. Лестница;
11. Направляющие для корзины;
12. Технологический лаз;
13. Крышка с воздухоотводом.
Очистные сооружения в железобетонном корпусе

Предлагаем вам полноразмерные ливневые очистные сооружения в железобетонном корпусе. При монтаже не требуется бетонного основания, возможен монтаж под проезжей частью.
*- ЖБ корпуса ОС-3 и ОС-6 представлены в одинаковых габаритах, различная производительность очистных сооружений достигается изменением количества технологического оборудования внутри корпусов
Очистные сооружения в блочно-модульном исполнении

Для повышения мобильности, а также при невозможности подземного монтажа, предлагаются типовые очистные сооружения в наземном (блочно-модульном) варианте.
Комплексы оснащены освещением, вентиляцией и отоплением. Технологическое оборудование очистных сооружений может выполняться как в пластике, так и в нержавеющей стали.
Очистные сооружения в металлическом корпусе

Ниже представлены типовые очистные сооружения в прямоугольном металлическом корпусе с одним технологическим колодцем.
Производительность данных очистных сооружений – от 2,5 до 6 литров в секунду.
Далее представлены очистные сооружения в прямоугольном металлическом корпусе с тремя технологическими колодцами.
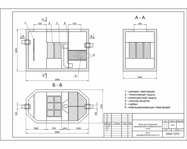
Щелевая перегородка
Тонкослойные модули
Коалесцентные модули
Нефтесборное устройство
Сорбционный фильтр
Технологический колодец
Камера предварительной очистки и камера доочистки стока выполнены из листовой стали – СТ-3 ГОСТ 14637-79 или из марок стали с аналогичным по механическим и химическим параметрам с органосиликатным покрытием марки ОС-12-03 или ОС-12-01 (ТУ 84-725-78).
Илососы ИВР для радиальных вторичных отстойников.

Илососы ИВР для радиальных вторичных отстойников

Илососы применяются для удаления выпавшего на дно активного ила и устанавливаются в очистных сооружениях канализации промышленных и коммунальных предприятий, не содержащих взрывоопасных смесей и эксплуатируются на открытом воздухе соответствующих климатическому исполнению У1 ГОСТ 15150-69.
Илососы ИВР выпускаются для отстойников диаметрами 16,18,20,24,28,30,40 м. Илососы изготавливаются в соответствии с ТУ 4859-006-90849087-2015.
Принцип действия: Исходная иловая смесь подается в отстойник трубопроводом через нижний вход полой неподвижной центральной опоры, оканчивающейся выходным конусом. Вокруг средней части этой опоры установлена кольцевая вращающаяся камера с илоприемной трубой. Ил из трубы поступает в кольцевую емкость вращающейся камеры, а оттуда, через илоотводящею трубу в бассейн выпуска ила

Установка ультрафиолетового обеззараживания воды

Установка ультрафиолетового обеззараживания воды УУОВ (10-500 м3/час)

Установка ультрафиолетового обеззараживания воды УУОВ — предназначена для эффективного и экологически безопасного обеззараживания воды в безнапорных системах очистки .Обладает высокой эффективностью воздействия на бактерии, вирусы и т.д.
1. Корпус;
2. УФ-лампы;
3. Лестница;
4. Поручень;
5. Шкаф управления
Системы специального назначения: ОС-Н, ОС-А.

Сооружение комплексной очистки поверхностного стока
со скиммером и нефтесборной емкостью ОС-Н

Сооружение предназначено для очистки производственно-поверхностного стока с высоким содержанием нефте-продуктов в исходном стоке с территорий нефтебаз, эстакад слива-налива нефтепродуктов и др. предприятий нефтегазовой промышленности.
1. Корпус;
2. Отстойник;
3. Патрубок переливной;
4. Нефтесборник;
5. Тонкослойный модуль;
6. Коалесцентный модуль;
7. Патрубок переливной;
8. Фильтр сорбционный;
9. Лестница;
10. Технологический лаз;
11. Крышка с воздухоотводом;
12. Скиммер
Сооружение комплексной очистки поверхностного стока
со скиммером и нефтесборной емкостью ОС-Н

Сооружение комплексной очистки поверхностного стока с мембранной аэрационной системой ОС предназначено для очистки поверхностного стока, имеющего в своем составе загрязнения характерные для хоз. бытового стока, а также для систем общесплавной канализации.
1. Корпус;
2. Отстойник;
3. Аэратор;
4. Патрубок переливной;
5. Тонкослойный модуль;
6. Коалесцентный модуль
7. Патрубок переливной;
8. Фильтр сорбционный;
9. Корзина для мусора;
10. Лестница;
11. Направляющие для корзины;
12. Технологический лаз;
13. Крышка с воздухоотводом.

Канализационная насосная станция КНС

Канализационная насосная станция (КНС) — предназначена для перекачивания дренажных, ливневых, хозяйственно-бытовых и промышленных сточных вод.
1. Корпус;
2. Насос;
3. Площадка обслуживания;
4. Обратный клапан;
5. Задвижка (затвор);
6. Поручень;
7. Крышка с технологическими лазами;
8. Щит управления
Канализационная насосная станция с аккумулирующим резервуаром и сухой приемной камерой

Комплексная насосная станция с аккумулирующим резервуаром и сухой приемной камерой устанавливается на объектах с неравномерным поступлением стоков в КНС или на очистные сооружения. Резервуар станции аккумулирует залповый сброс дождевых стоков и насосы в штатном режиме перекачивают воду. Одним из преимуществ данного исполнения является возможность обслуживания насосных агрегатов и запорной арматуры внутри корпуса станции.

1. Корпус приемного резервуара;
2. Лестница;
3. Крышка с воздухоотводом;
4. Технологический лаз;
5. Затвор;
6. Насос;
7. Корпус КНС;
8. Площадка обслуживания;
9. Обратный клапан;
10. Задвижка (затвор);
11. Поручень;
12. Крышка с технологическими лазами;
13. Щит управления

Оборудование КНС комплектуется насосами следующих производителей:
Станция дозирования и приготовления реагента СДиПР

Станция дозирования и приготовления реагента СДиПР — предназначена для повышения эффективности работы
комплекса очистных сооружений.
1. Корпус;
2. Лестница;
3. Технологический лаз;
4. Воздуховод;
5. Щит управления;
6. Насос дозаторный;
7. Мешалка электрическая;
8. Емкость для реагента
Станция дозирования и приготовления реагента СДиПР (10-100 л/ч)
Аэрационные системы

Длина аэрационной поверхности от 0,5 до 18 метров на одну точку подвода воздуха.
Не требует донной воздухораспределительной системы.
Каждая мембрана проходит тест повышенным давлением с регистрацией результатов и визуальный контроль.
Каждая 10-я мембрана проходит тест на пузырьковую конфигурацию. У оборудования есть необходимые документы:
паспорта, технические условия, таможенные декларации и сертификаты Евразийского соответствия (EAC).
Крупнопузырчатая аэрационная система
Мелкопузырчатая аэрационная система
Решетки-дробилки канализационные АКОМИС
Предназначена задерживать и измельчать в потоке сточных вод бытовой и строительный мусор, текстиль, резину, пластик, кожу, пищевые отходы, мусор, обеспечивать защиту насосов от засорения при очистке хозяйственно-бытовых стоков.
Номинальная производительность от 20 м3/час до 2000 м3/час. Имеет степень защиты IP 55–68.
Вид присоединения измельчителя канальное и трубное.
Выполнен из нержавеющей стали. Мощность двигателя от 1.5 кВт до 7 .5 кВт. Крутящий момент с 200 до 800 Нм.
Серия 200 MINI
Серия 300
Серия 500
Серия 1Б
Щитовые затворы
Прямоугольные щитовые затворы DN 200Х200 до 2000Х2000
Запорная и регулирующая арматура для воды и сточных вод до 50°C
DN 150 …2000, PN 6 м вод.ст. — 10 м вод.ст.
Особенности конструкции:
Соответствует классу герметичности А-А по ГОСТ Р 54808-2011
Компактность конструкции
Двухстороннее уплотнение

Составляющие:
1 – Уплотнительное кольцо, устойчивое к агрессивной среде сточных вод
2 – Шпилька
3 – Рама, щит, элементы привода
4 – Клиновый фиксатор уплотнения
Материалы конструкции изготовлены из нержавеющей стали: 304 AISI (08Х18Н10), по выбору 321 AISI (12Х18Н10Т)
Область применения:
— Коммунальные или индустриальные и сточные установки
— На подающих коллекторах водозаборных станций питьевой и технической оборотной воды
— В приемных камерах
— В тоннельных коллекторах
Виды монтажа:
— На трубопровод
— Для установки на стену с помощью дюбельного крепежа
— Класс герметичности по ГОСТ Р 54808-2011 после установки –АА (максимально допустимая утечка в затворе не более 0,0004DN см3/мин)
Рабочее давление – герметичность при давлении снаружи или с обратной стороны:
— DN 150 … DN 300: 10 м вод.ст.
— DN 400 … DN 800: 8 м вод.ст.
— DN 900 … DN 1200: 7 м вод.ст.
— От DN 1200: 6 м вод.ст.
Особенности конструкции:
— Компактная конструкция
— Прорезиненное уплотнительное кольцо для уплотнения круглых и прямоугольных стенных отверстий
— Уплотнение заменимо без разборки рам
— Простой и быстрый монтаж
Материалы:
— Материалы конструкции изготовлены из нержавеющей стали 304 AISI (08Х18Н10), по выбору 321 AISI (08Х18Н10)
— Уплотнение устойчиво к агрессивной среде сточных вод

Область применения:
1 – Очистные сооружения
2 – Канализационные сети
3 – Водоподготовка
4 – Орошение
5 – Водозаборные сооружения
Спецификация:
— Уплотнительное кольцо устойчивое к агрессивной среде сточных вод
— Щит из нержавеющей стали 321 AISI по запросу (321 AISI)
— Рама, элементы привода из нержавеющей стали304 AISI по запросу (321 AISI), гайка – латунь ЛС 59 – 1 ГОСТ 15527-70
— Клиновой фиксатор уплотнения
Управление:
— Редуктор (с выдвижным или невыдвижным штоком)
— Электропривод(с выдвижным или невыдвижным штоком)
— Штурвал (с выдвижным или невыдвижным штоком)

Возможно исполнение с редуктором и электроприводом импортного или российского производства.
Варианты монтажных конструкций:
— Установка в канал
— Установка к стене
— Установка в штробу

Водоподготовка

Понятие водоподготовка — это процесс обработки воды, которая добывается из природного источника, направленный на приведение её качества до требований какого-либо технологического потребителя.
Также водоподготовка производится для коммунальных хозяйств, котельных, некоторых видов транспорта и промышленных предприятий. Для различных бытовых и производственных нужд используется вода с разными свойствами, соответственно и водоподготовка тоже будет разной. Обычно водоподготовка проходит по таким этапам: осветление, обеззараживание, умягчение, дегазация, деминерализация и возможно добавление некоторых химических компонентов. Поставляемое нами оборудование позволит качественно провести процесс водоподготовки.
Мы предлагаем своим клиентам установки водоподготовки по индивидуальным параметрам. Компания окажет весь спектр по проектированию, установке, наладке и пуску, а так же даст гарантии на свою работу .


Технологическая схема станции водоподготовки разрабатывается на основании предоставленных показателей качества исходной воды.
Анализ возможных методов очистки воды до норм, установленных СаНПиН 2.1.4.1074-01 по показателям показывает, что наиболее оптимальной следует считать следующую схему очистки:
1. Предварительная фильтрация на фильтре грубой очистки. Очистка воды от грубодисперсных примесей (окалина с труб и т.п.), которые могут привести к выходу из строя запорно-регулирующую арматуру.
2. Окисление железа. Окисление железа и марганца происходит в емкости исходной воды, объем которой обеспечивает необходимое время контакта окислителя с водой. В качестве окислителя предполагается использовать гипохлорит натрия NaОСl. Расход реагента определяется в период пусконаладочных работ.
3. Коагуляция загрязнений. Окисленные вещества необходимо удалить из очищаемой воды. Удаление из воды загрязнений осуществляется на фильтре. В целях повышения эффективности их удаления рассматриваемые загрязнения коагулируют (укрупняют) для чего дозируют коагулянт. В процессе коагулирования образуются «хлопья» коагулянта, которые состоят из огромного числа коллоидных частичек (мицелл) и обладают значительной удельной поверхностью, что позволяет сорбировать из воды различные загрязнения, в том числе и ртуть. Для эффективного проведения процесса коагуляции дозируют щёлочь (для повышения рН). В качестве коагулянта предполагается использовать сульфат алюминия Al2(SO4)3. Расход реагентов определяется в период пусконаладочных работ.
4. Механическая фильтрация. Механическая фильтрация обеспечивает удаление из воды скоагулированной фракции. Процесс осуществляется на осветительном фильтре с автоматической системой управления, что позволяет проводить промывочные циклы в автоматическом режиме, по заданной программе. Периодичность проведения промывок определяется в период пусконаладочных работ.
5. Сорбционная очистка. Использование фильтра с загрузкой активированным углем позволяет удалить остатки загрязнений после механической фильтрации и улучшить органолептические свойства воды. Процесс осуществляется на сорбционном фильтре с автоматической системой управления, что позволяет проводить промывочные циклы в автоматическом режиме, по заданной программе. Периодичность проведения промывок определяется в период пусконаладочных работ.
6. Очистка на фильтрах тонкой очистки. Для исключения попадания частиц загрузки фильтров в очищенную воду в схеме предусмотрен фильтр тонкой очистки, который расположены после сорбционного фильтра.
7. Перед поступлением очищенной воды в накопительный резервуар согласно требованиям СанПИН 2.1.4.1074 в воду вводится дезинфектант, обладающий пролонгированным действием, в схеме для этой цели используется гипохлорит натрия (NaClO)
Разработка систем водоподготовки – весьма ответственная задача, которая требует индивидуального комплексного подхода.
Ее экономичность, производительность, надежность в эксплуатации, зависят исключительно от компании, которая занимается проектированием системы и установкой оборудования. Процедура водоподготовки является необходимостью для коммунальных предприятий и котельных, теплоэлектростанций, агропромышленного комплекса, водоканалов, организаций, которые осуществляют свою деятельность в химической, пищевой, нефтеперерабатывающей отраслях промышленности. От качества проведенных работ, правильного подбора установок для очистки и подготовки воды зависит эффективность работы дорогостоящего оборудования, трубопроводов, других элементов систем отопления и водоснабжения.

Решетки канализационные
Назначение
Предназначена для извлечения взвесей из производственных и хозяйственных сточных вод в транспортирующие устройство или мусорный контейнер.
Применение
Решетка грабельная устанавливается в насосных станциях и площадках очистных сооружений.
Исполнения
Решетка изготовлена из нержавеющей стали AISI 304, по выбору AISI 321.
Тип размера данного оборудования подбирается по пропускной способности и ширины прозора в фильтрующей части. Ширина прозора между стержнями может быть исполнено от 5 до 70мм
Составляющие
Состоит из корпуса, прозорной доски, грабель, цепного механизма из нержавеющей стали.
Решетка шнековая
Назначение решетки шнековой:
Фильтрующее устройство, предназначенное для извлечения отходов с последующей промывкой и уплотнением, транспортировкой из приемных резервуаров
Составляющие:
1 — Фильтрующая часть RV-2 — RV-10 мм.
2 — Мотор-редуктор IP54; IP68 согласно DIN EN 60529 (IEC 60529), гидропривод, взрывозащищенный привод. Возможно исполнение с мотор-редуктором импортного или российского производства.
3 — Шнек 304 AISI (08Х18Н10), по выбору 321 AISI (12Х18Н10Т), Hardox 500; 450 (20ХГНМ), легированная сталь.
4 — Модуль уплотнения и выгрузки.
5 — Фланцевое соединение ГОСТ 12820-80.
Шкаф управления и автоматики.
Возможен подогрев корпуса для уличного исполнения.
Область применения
— Коммунальные или индустриальные и сточные установки
— Виды монтажа
— На трубопровод
— Для установки в существующий канал
— В бак
Шнековый конвейер
КВ-160T(U);КВ-200T(U);КВ-250T(U); КВ-300T(U) ТУ 4859-003-31024649-2013
Назначение винтового конвейера
Предназначен для транспортировки пылевидных, порошкообразных насыпных грузов, отбросов, песка и осадка.
Составляющие:
1 — Шнек 304 AISI (08Х18Н10), по выбору 321 AISI (12Х18Н10Т), легированная сталь
2 — Вкладыш: износоустойчивые планки,304 AISI (08Х18Н10), по выбору 321 AISI (12Х18Н10Т),легированная сталь; износоустойчивые пластины
3 — Подшипниковый узел
4 — Корпус
5 — Регулируемые опоры
6 – Мотор-редуктор IP54, IP68 согласно DIN EN 60529 (IEC 60529). Возможно исполнение с мотор-редуктором импортного или российского производства.
7 — Защитный кожух
8 – Приемная воронка
Область применения
Коммунальные или индустриальные и сточные установки; сельское хозяйство, строительство, промышленность
Виды исполнения
Корпус: лотковый; труба
Шнеки: осевой; ленточный; лопастной
Модели:
Очистные сооружения
Услуга: очистные сооружения под заказ и по индивидуальному проекту.
Основное направление деятельности компании «СГС» — проектирование и строительство очистных сооружений различного типа и назначения на территории Российской Федерации.
Компания «СГС» предлагает локальные очистные сооружения для решения проблем отвода и очистки хозяйственно-бытовых сточных вод, используя современные технологии строительства и проектирования локальных очистных сооружений, а так же многолетний опыт. Очистная станция предназначена для очистки воды до норм сброс установленных ГУП Водоканал или под индивидуальные параметры заказчика
При составлении проекта очистных сооружений инженеры компании анализируют все потребности и запросы заказчика, исследуют его задачи, разрабатывают оптимальное решение для реализации каждой из задач, внедряют системы очистки воды, а в дальнейшем поддерживают и сопровождают созданную систему. В компании «СГС» разработана индивидуальная гарантийная и пост гарантийная система обслуживания очистных сооружений. Мы не только проектируем и производим монтаж очистных сооружений построенных нашей компаний, но производим обслуживание и ремонт (реконструкция очистных сооружений) чужих очистных систем.
Индивидуальный подход к разработке локальных очистных сооружений разного типа и подбор оптимального очистного оборудования позволяет достичь отличных результатов в соотношении цена-качество-эффективность. Выбирая услуги нашей компании Вы всегда можете рассчитывать на гибкие системы скидок и оплаты услуг.
Компания участвует в строительных выставках в Москве и Санкт-Петербурге, где представляет собственные разработки очистных сооружений.
Очистные сооружения хозяйственно-бытового стока

ООО «СГС» осуществляет проектирование, изготовление и монтаж очистных сооружений хозяйственно-бытовых стоков любой производительности.
Очистные сооружения хозяйственно-бытового стока предназначены для глубокой биологической очистки фекально-бытовых сточных вод от дач, групп коттеджей, кафе, туристических баз, торгово-развлекательных комплексов, промышленных предприятий и других объектов.
Очистка хозяйственно-бытовых стоков осуществляется при помощи установок биологической очистки сточных вод. Основной группой в номенклатуре оборудования являются станции и установки биологической очистки сточных вод для умеренного климата. Наши системы водоочистки являются компактными и модульными решениями под ключ с наилучшим соотношением цена / качество / степень очистки. На установках очистки сточных вод базовой модели первичная очистка осуществляется на решетке с прозором 3 мм и песколовке с тонкослойной сепарацией. Мусор с решетки обезвоживается на гидравлическом прессе и сбрасывается в мобильный контейнер, песок обезвоживается фильтрацией на установке гравитационного типа. Далее происходит осветление с использованием коагулянтов. На установках осуществляется только первичное отстаивание с использованием коагулянта. Технология очистки сточных вод разработана для использования микроорганизмов-обрастателей, обитающих на специальных пластмассовых носителях. Процесс очистки обладает высокой устойчивостью, благодаря саморегуляции. В процессе очистки стока лишний ил не образуется. Аэрацию осуществляет компрессор.

Очистные сооружения промышленного типа
ООО «СГС» осуществляет проектирование, изготовление и монтаж очистных сооружений промышленных стоков любой производительности.
Промышленные сточные воды – это стоки, которые образуются в технологическом цикле определённого производства. Очистные сооружения промышленных стоков обязаны обеспечивать очистку воды до установленных законодательством нормативов.
Цель применения очистных сооружений на предприятии состоит в подготовке и очистке стоков к выпуску в городские канализационные сети или к повторному использованию. Очистка стоков производства производит снижение концентраций жиров, нефтепродуктов, масел, взвешенных веществ и нерастворимых в воде солей до предельно допустимых концентраций.
Очистка сточных вод производится в зависимости от типа стоков и требований, предъявляемых к очищенной воде. Для очистки сложных сточных вод возможно применение реагентов и коагулянтов.Промышленные стоки имеют различный качественный и количественный состав, поэтому для очистки этих стоков (в зависимости от характера загрязнений, технологии производства и других важных факторов) осуществляется применение технологических решений, включающих несколько методов очистки для получения необходимого результата.
Очистка происходит в две ступени. Первая – физико-химическая, вторая – биологическая. Это позволяет очистить стоки до нормативов, позволяющих осуществлять их сброс в водоемы.
В компании СГС вы так же можете заказать станцию очистки сточных вод.
Область применения:
Молокоперерабатывающие производства
Мясоперерабатывающие производства
Пивобезалкогольные производства
Спиртовые производства
Винодельческие производства
Производство полуфабрикатов, салатов
Сахарные производства
Кондитерские и т.п
Производство растительного масла и жира
Овоще-фруктоперерабатывающая промышленность
Текстильная промышленность
Нефтяная промышленность

Комплексы ливневых очистных сооружений

Очистные сооружения ливневого (поверхностного) стока предназначены для очистки талых, атмосферных сточных вод до показателей очистки, соответствующих СанПиН 2.1.5.980- 00 «Гигиенические требования к охране поверхностных вод». Основная задача очистных сооружений ливневой канализации — удаление взвешенных веществ, металлов, органических веществ и нефтепродуктов. В соответствие с требованиями заказчика, специалисты спроектируют и изготовят ливневые очистные сооружения, используя различные методы очистки: механический, физико-химический и прочие.
Предлагаем типовые очистные сооружения производительностью до 120 л/с с размещением технологического оборудования в различных корпусах:
— стеклопластиковый;
— пластиковый;
— железобетонный;
— металлический;
— блок-контейнер;
Режим движения жидкости безнапорный.
Это позволяет:
— Избежать использования насосного оборудования и затрат на электроэнергию;
— Достичь высокой надежности в связи с простотой и удобством в эксплуатации;
— Избежать дополнительных затрат, поскольку не требуется постоянного присутствия персонала.
Схема очистки стока четырехступенчатая:
1-я ступень – горизонтальный отстойник.
2-я ступень — очистка на тонкослойных модулях.
3-я ступень – очистка на коалесцентных модулях.
4-я ступень – доочистка на сорбционном фильтре.
Концентрация основных загрязнений в сточной воде (мг/л):
У каждого изделия есть необходимые документы: паспорта, технические условия, таможенные декларации и сертификаты Евразийского соответствия (EAC).
© Все права защищены. Designed by hitrecnik.
КОНТАКТЫ
8 (812) 385-08-86
8 (812) 385-08-98
8 (812) 385-08-99
8 (812) 385-08-98